Versteigerungsdatum
24.3.2026
Objektart
Wohnung
Schätzwert
CHF 1'200'000.-
Standort
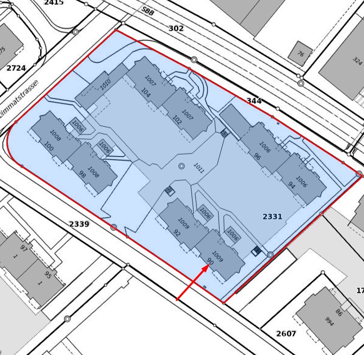
Hardstrasse 90 5432 Neuenhof, AG
Versteigerung
- Versteigerungsdatum
- Dienstag, 24. März 2026
- Zeit
- 14:00 Uhr
- Ort
- Peterskeller, Zürcherstrasse 89, 5432 Neuenhof
Grundstück
- Grundstück Nr.:
- 73, 74
- Stamm-Grundstück:
- 2331
- Grundbuch:
- Neuenhof
- Link zum Plan:
- GIS- Kanton- AG
Eigenschaften
- Anzahl Zimmer:
- 5½
- Etage:
- Dachgeschoss
- Nutzfläche:
- 140 m2
- Auto-Einstellplätze:
- 4
Werte
- Amtliche Schätzung:
- CHF 1'200'000.-
- Anzahlung:
- CHF 100'000.-
Mehr Details und weitere Auktionen
Auf AuctionHome.ch finden Sie mehr Details zu dieser Auktion und alle Konkurs- und Betreibungsamtlichen Grundstückversteigerungen in der Schweiz.Zuständiges Amt
Betreibungsamt NeuenhofZürcherstrasse 107
5432 Neuenhof
Neuenhof AG
(wikipedia.org)
| Neuenhof | |
|---|---|
| Staat: | |
| Kanton: | |
| Bezirk: | Baden |
| BFS-Nr.: | 4034 |
| Postleitzahl: | 5432 |
| Koordinaten: | 667120 / 255303 |
| Höhe: | 412 m ü. M. |
| Höhenbereich: | 357–702 m ü. M.[1] |
| Fläche: | 5,38 km²[2] |
| Einwohner: | 9212 (31. Dezember 2024)[3] |
| Einwohnerdichte: | 1712 Einw. pro km² |
| Ausländeranteil: (Einwohner ohne Schweizer Bürgerrecht) |
52,5 % (31. Dezember 2024)[4] |
| Gemeindeammann: | Martin Uebelhart |
| Website: | www.neuenhof.ch |
Sicht von Wettingen über die Limmat auf Neuenhof
| |
| Lage der Gemeinde | |
Haftungsausschluss
Alle Inhalte dienen nur zu Informationszwecken und es wird keine Zusicherung oder Gewährleistung hinsichtlich ihrer Richtigkeit oder Vollständigkeit gemacht. Eigenschaftsbeschreibungen, Dokumente und Bilder etc. beschreiben die Eigenschaft möglicherweise nicht korrekt. Sie werden ermutigt, Ihre eigene Sorgfaltspflicht zu erfüllen und bei Bedarf unabhängigen professionellen Rat einzuholen.
Diese Daten Stammen u.a. vom Amtsblattportal (shab.ch). Dies ist keine amtliche Veröffentlichung. Massgebend sind die vom SECO mit einer elektronischen Signatur oder einem elektronischen Siegel versehenen Daten im Amtsblattportal.
Diese Daten Stammen u.a. vom Amtsblattportal (shab.ch). Dies ist keine amtliche Veröffentlichung. Massgebend sind die vom SECO mit einer elektronischen Signatur oder einem elektronischen Siegel versehenen Daten im Amtsblattportal.

